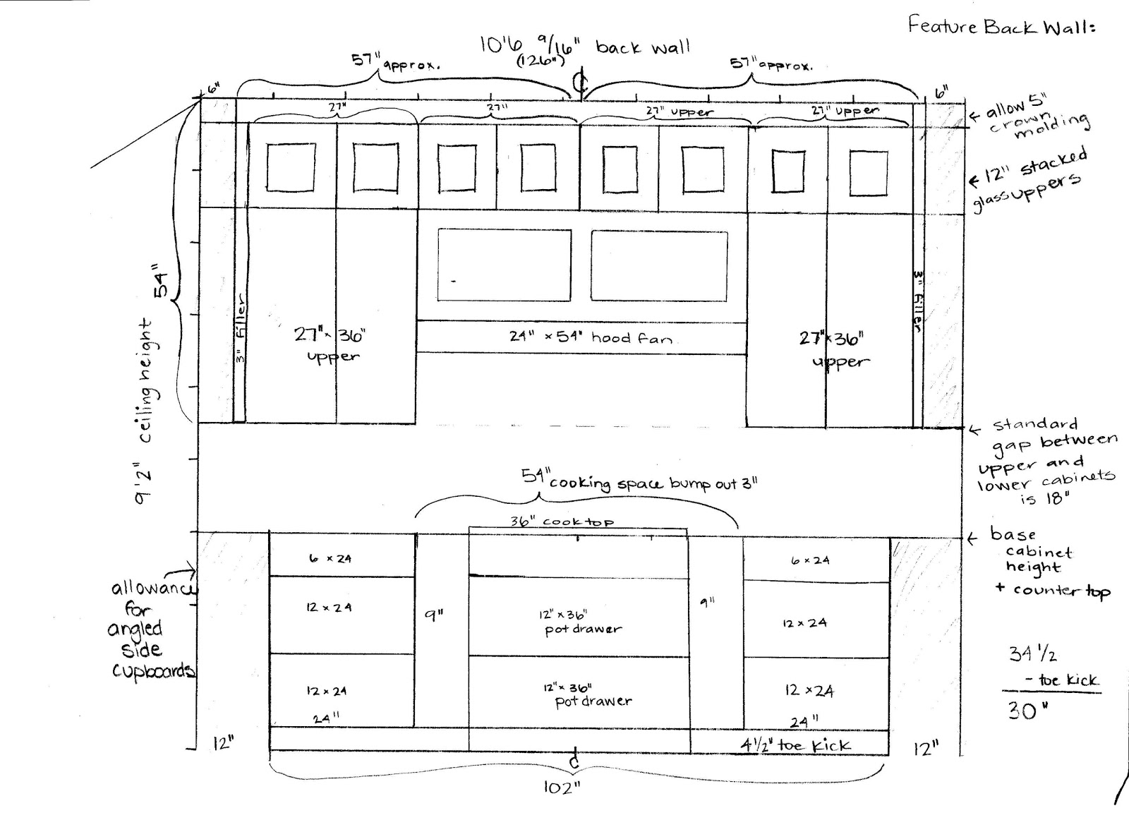
Kitchen Base Cabinet Drawer Dimensions - Base cabinets may have a single door, double doors, a series of drawers, or a combination of a drawer and doors;

Kitchen Base Cabinet Drawer Dimensions - Base cabinets may have a single door, double doors, a series of drawers, or a combination of a drawer and doors;. These cabinets need to be very sturdy in order to form the base for your countertops. It all depends on your design needs.the standard size of a base cabinet is 34.5 inches tall without the countertop and 36 inches with the countertop. Base cabinets serve as the base or foundation for countertops and other surfaces. First let's look at the sizes of base cabinets. Shelf thickness offers durability and its adjustable shelf design helps you maximize your storage space.

Base cabinets may have a single door, double doors, a series of drawers, or a combination of a drawer and doors; Base cabinets serve as the base or foundation for countertops and other surfaces. Shelf thickness offers durability and its adjustable shelf design helps you maximize your storage space. We'll also give you some tips for installing the drawer glides without a lot of head scratching. They rest on the floor and typically come with one drawer and a set of shelves or a few drawers stacked on top of one another, depending on your needs and preferences.

29 Cabinet plans ideas | cabinet plans, diy kitchen ...
29 Cabinet plans ideas | cabinet plans, diy kitchen ... from i.pinimg.com
It all depends on your design needs.the standard size of a base cabinet is 34.5 inches tall without the countertop and 36 inches with the countertop. Base cabinets may have a single door, double doors, a series of drawers, or a combination of a drawer and doors; They rest on the floor and typically come with one drawer and a set of shelves or a few drawers stacked on top of one another, depending on your needs and preferences. You'll probably have to adapt the project dimensions to fit your space. Shelf thickness offers durability and its adjustable shelf design helps you maximize your storage space. These cabinets need to be very sturdy in order to form the base for your countertops. First let's look at the sizes of base cabinets. Base cabinets serve as the base or foundation for countertops and other surfaces.

Shelf thickness offers durability and its adjustable shelf design helps you maximize your storage space.

Base cabinets may have a single door, double doors, a series of drawers, or a combination of a drawer and doors; Shelf thickness offers durability and its adjustable shelf design helps you maximize your storage space. We'll also give you some tips for installing the drawer glides without a lot of head scratching. These cabinets need to be very sturdy in order to form the base for your countertops. It all depends on your design needs.the standard size of a base cabinet is 34.5 inches tall without the countertop and 36 inches with the countertop. Base cabinets serve as the base or foundation for countertops and other surfaces. They rest on the floor and typically come with one drawer and a set of shelves or a few drawers stacked on top of one another, depending on your needs and preferences. First let's look at the sizes of base cabinets. You'll probably have to adapt the project dimensions to fit your space.

It all depends on your design needs.the standard size of a base cabinet is 34.5 inches tall without the countertop and 36 inches with the countertop. We'll also give you some tips for installing the drawer glides without a lot of head scratching. First let's look at the sizes of base cabinets. These cabinets need to be very sturdy in order to form the base for your countertops. Shelf thickness offers durability and its adjustable shelf design helps you maximize your storage space.

Kitchen Base Cabinet Dimensions For Dishwasher Ideas — 3 ...
Kitchen Base Cabinet Dimensions For Dishwasher Ideas — 3 ... from design.flaminiadelconte.com
First let's look at the sizes of base cabinets. They rest on the floor and typically come with one drawer and a set of shelves or a few drawers stacked on top of one another, depending on your needs and preferences. You'll probably have to adapt the project dimensions to fit your space. Shelf thickness offers durability and its adjustable shelf design helps you maximize your storage space. We'll also give you some tips for installing the drawer glides without a lot of head scratching. It all depends on your design needs.the standard size of a base cabinet is 34.5 inches tall without the countertop and 36 inches with the countertop. Base cabinets may have a single door, double doors, a series of drawers, or a combination of a drawer and doors; Base cabinets serve as the base or foundation for countertops and other surfaces.

Base cabinets serve as the base or foundation for countertops and other surfaces.

Shelf thickness offers durability and its adjustable shelf design helps you maximize your storage space. They rest on the floor and typically come with one drawer and a set of shelves or a few drawers stacked on top of one another, depending on your needs and preferences. You'll probably have to adapt the project dimensions to fit your space. It all depends on your design needs.the standard size of a base cabinet is 34.5 inches tall without the countertop and 36 inches with the countertop. First let's look at the sizes of base cabinets. Base cabinets serve as the base or foundation for countertops and other surfaces. Base cabinets may have a single door, double doors, a series of drawers, or a combination of a drawer and doors; We'll also give you some tips for installing the drawer glides without a lot of head scratching. These cabinets need to be very sturdy in order to form the base for your countertops.

Shelf thickness offers durability and its adjustable shelf design helps you maximize your storage space. It all depends on your design needs.the standard size of a base cabinet is 34.5 inches tall without the countertop and 36 inches with the countertop. First let's look at the sizes of base cabinets. Base cabinets may have a single door, double doors, a series of drawers, or a combination of a drawer and doors; You'll probably have to adapt the project dimensions to fit your space.

Kitchen Base Cabinet Dimensions For Dishwasher Ideas — 3 ...
Kitchen Base Cabinet Dimensions For Dishwasher Ideas — 3 ... from design.flaminiadelconte.com
Base cabinets may have a single door, double doors, a series of drawers, or a combination of a drawer and doors; First let's look at the sizes of base cabinets. It all depends on your design needs.the standard size of a base cabinet is 34.5 inches tall without the countertop and 36 inches with the countertop. Shelf thickness offers durability and its adjustable shelf design helps you maximize your storage space. Base cabinets serve as the base or foundation for countertops and other surfaces. We'll also give you some tips for installing the drawer glides without a lot of head scratching. You'll probably have to adapt the project dimensions to fit your space. These cabinets need to be very sturdy in order to form the base for your countertops.

Base cabinets may have a single door, double doors, a series of drawers, or a combination of a drawer and doors;

It all depends on your design needs.the standard size of a base cabinet is 34.5 inches tall without the countertop and 36 inches with the countertop. We'll also give you some tips for installing the drawer glides without a lot of head scratching. You'll probably have to adapt the project dimensions to fit your space. Base cabinets serve as the base or foundation for countertops and other surfaces. They rest on the floor and typically come with one drawer and a set of shelves or a few drawers stacked on top of one another, depending on your needs and preferences. First let's look at the sizes of base cabinets. Shelf thickness offers durability and its adjustable shelf design helps you maximize your storage space. These cabinets need to be very sturdy in order to form the base for your countertops. Base cabinets may have a single door, double doors, a series of drawers, or a combination of a drawer and doors;

Base cabinets serve as the base or foundation for countertops and other surfaces kitchen base cabinet dimensions. Base cabinets may have a single door, double doors, a series of drawers, or a combination of a drawer and doors;

Posting Komentar

0 Komentar